0前言
近年來由于煤炭價格的飛漲,以及國家加大了節能減排的力度,對于燃煤熱電廠嚴格按照以熱定電的原則分配上網電量計劃,使很多熱負荷不足的電廠嚴重出力不足,經營連續虧損,各熱電廠紛紛尋找新的出路,寶應協鑫生物質發電有限公司是于2005年4月投產的小熱電聯產企業,由于投產以后熱負荷始終停留在15~20萬t/a,供熱量偏低,一直受上網電量偏低的限制,公司的經濟效益較差。近年寶應協鑫公司通過對鍋爐進行系列的生物質改造工程,渡過了一般小熱電企業最困難的階段,實現公司轉型和可持續發展的目標。
1、概況
某公司安裝的1#、2#爐是濟南某鍋爐廠設計開發的新一代高效、低污染燃用煤泥、矸石、秸稈混合燃料的75 t/h循環流化床鍋爐。該鍋爐為自然循環水管鍋爐,采用由蝸殼式旋風分離器組成的循環燃燒系統,爐膛為膜式水冷壁結構,過熱器分高、低二級過熱器,中間設噴水減溫器,尾部設二級省煤器和一二次風預熱器。表1為鍋爐主要設計參數。鍋爐設計燃料特性(煤泥+煤)如表2。

2 1#、2#燃煤鍋爐改造成全燃生物質鍋爐的步驟及主要內容2.1 2006年l#、2#爐摻燒30%生物質技改為了充分利用當地豐富的稻殼資源和鍋爐設計時可摻燒生物質的特點,降低燃料成本,增加企業經濟效益,寶應公司于2005年10月至2006年3月對循環流化床鍋爐進行了摻燒生物質技改。
本次技改鍋爐本體未做任何改動,主要是在1#、2#鍋爐中間新上了一套生物質刮板輸送系統(如圖1),所有生物質燃料均采用單獨輸送、直接摻燒方式,即生物質入廠后經單獨的輸送系統輸送到爐前,在輸送風的作用下由落煤管處送人爐膛進行燃燒,該系統單爐摻燒稻殼達到6 t/h左右,摻燒能力達30%左右。生物質燃料特性如表3。

1#、2#爐摻燒30%生物質后,鍋爐的負荷、熱效率及鍋爐過熱器、省煤器等結灰、腐蝕基本沒有任何影響,同時減少煙氣二氧化硫的排放。
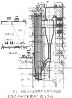
2.2 2007年1#、2#鍋爐摻燒80%生物質技改為了使公司滿足享受國家對生物質發電電價補貼政策的要求,2007年公司新裝一臺秸稈直燃鍋爐并將已投運的1#、2#75 Uh燃煤循環流化床鍋爐改造為摻燒80%以上生物質的混燃鍋爐,從而使公司由燃煤熱電廠轉變為生物質電廠。
(1)1 #、2#鍋爐摻燒80%生物質改造的主要內容:
①新增加二套生物質上料皮帶,可同時對1#、2#鍋爐進行上料;
②在1 #、2#鍋爐煤倉南側新建一座生物質料倉,并在倉內布置一級給料機,以便將生物質進行分配;將原煤倉中間下煤口封閉并且安裝一臺二級給料機;拆除11 m標高層的2#給煤機并且安裝一臺三級螺旋給料機(如圖2);

(2)改造后運行情況:
1#、2#鍋爐正常運行時的燃料主要是高熱值的神華煤炭(5 500 kcal/kg)、稻殼(3 000 kcal/kg)、棉花桿、樹皮、碎雜木(2 500 kcal/kg)、黃色秸稈(2 500 kcal/kg),人爐生物質質量較好,入爐燃料水分30%左右,平均熱值3 300 kcal/kg左右,與設計入爐燃料的熱值偏差不大,鍋爐平均負荷能夠維持在70 U/h左右,所以對鍋爐負荷及鍋爐熱效率影響均不大,鍋爐結灰和腐蝕的影響相對較小。
2.3 2009年對1#、2#鍋爐實施全燃生物質技改
根據國家政策規定混燃發電不能享受生物質發電的各項優惠政策,影響了公司的經濟效益,公司于2009年6—8月又實施了1#、2#鍋爐全燃生物質技術改造。
(1)1#、2#鍋爐全燃改造的主要內容(見圖3)

①拆除原爐前上煤系統,包括拆除原煤倉、給煤機等;
②新增生物質給料系統,包括生物質料倉、~級螺旋卸料機、二級輸料皮帶以及三級雙螺旋給料機等;
③鍋爐本體新增2個生物質給料口,封閉原3個給煤口;增加吹灰器、防爆門、羅茨風機、返料風機等;
④電除塵器前增加旋風分離器、倉泵、灰管等;
⑤改造控制系統,包括監控系統和控制系統DCS升級等。
(2)改造后運行情況
75 t/h燃煤鍋爐實施全燃技改后,由于燃料的特性發生了巨大的變化,再加上近年新上生物質電廠較多,造成生物質資源緊張,生物質質量下降,人爐燃料的平均水分在40%左右,平均熱值約2000 kcal/kg。入爐燃料與設計值偏差過大,帶負荷能力僅為40~45 t/h,負荷率嚴重偏低,并且出現爐床超溫結焦、返料器頻繁結焦堵灰、過熱器磨損、腐蝕等問題,鍋爐運行的穩定性、經濟性相對變差,全燃改造后鍋爐最長運行記錄2010年上半年僅為15天.連續運行周期短,嚴重制約公司安全經濟穩定運行。
3、全燃生物質后鍋爐存在的主要問題及原因分析
3.1全燃后入爐燃料特性與設計燃料相比變化較大
(1)人爐燃料由設計熱值3 722 kcal/kg、水分15. 81%的煤和煤泥變為了平均熱值約2 000 kcal/kg、平均水分40%左右的生物質,人爐熱值下降了46.3%,水分增加了153%。由于原鍋爐的熱容積偏小,燃生物質后,在鍋爐帶高負荷時,容易造成爐膛床溫升高、返料器超溫等,制約鍋爐負荷提升。
(2)設計人爐煤和煤泥混合燃料的揮發分大約為22%,而生物質揮發分為60%左右,并且生物質相對較輕,人爐后往爐膛上部飄移較快,全燃生物質后爐膛火焰的中心向上轉移。
(3)設計鍋爐返料器和中性筒等循環倍率時,灰分按煤和煤泥混合燃料31. 5%計算,然而生物質的灰分為2%~13%,遠小于煤和煤泥混合燃料的灰分,并且灰較細,生物質中可作為循環物料的灰分較少,全燃生物質后爐膛差壓由燃煤時的800~1 000 Pa降到了0~60 Pa,使返料器中的物料無法帶到爐膛,造成返料器超溫。
(4)燃煤的灰熔點大約為1100~1 200℃;黃色生物質灰熔點約為900~ 950℃。生物質灰熔點低,床溫和返料器溫度超過900℃時就容易造成床料和返料灰結焦。
3.2燃料質量的差異給鍋爐負荷提升造成了一定的影響
(1) 2010年實際使用生物質種類如表4,實際收購的生物質的水分遠超表3中的水分,入爐燃料的熱值遠低于表3中的熱值。
(2)燃煤的顆粒度、熱值相對較一致,鍋爐運行較穩定,負荷波動也很小,而生物質由于加工得長短不一,水分變化較大,雜質較多,使鍋爐上料系統及爐前系統絞龍及皮帶機落料腿等處容易堵料以及上料不均,容易造成鍋爐負荷波動(10 N15 Uh),影響平均負荷率。

3.3全燃生物質后鍋爐輔機對運行的影響
(1)引風機風壓偏低,制約一次、二次風量。
全燃生物質技改時,為保證煙塵達標排放,在電除塵器前增加旋風分離器,使煙道阻力增加了800Pa左右,造成原引風機的風壓不夠,負荷增加到45Uh以上時,為了防止床溫和返料溫度超溫造成結焦,增加一二次風量,將會造成鍋爐冒正壓,影響安全運行。
(2)二次風補給的位置不符合全燃生物質燃燒的要求。
燃煤時的二次風布置在鍋爐的底層三排,技改時未做調整。全燃生物質后鍋爐燃燒中心由燃煤時爐膛底部移到了爐膛的中上部,床層處保證床料流化的一次風量基本足夠爐膛底部生物質燃燒需氧量,所以密相區床層處的二次風的補充反而變成多余,然而爐膛的中上部因為無二次風補充,變得缺氧,造成大量未燃盡的生物質在返料器、過熱器處燃燒而超溫,現有二次風補給不符合燃料對二次風(氧量)補給的位置要求。
(3)高溫過熱器和省煤器結灰嚴重,增加了煙道阻力。
全燃生物質過程中,在高溫過熱器和低溫過熱器等部位容易黏附灰色的黏稠或熔融狀沉淀物,管束上表面沉淀物相對松軟,但緊貼管壁上有時存在著堅硬、難溶的磷酸鹽結垢,并且易造成垢下腐蝕。省煤器處結灰嚴重,原省煤器力鰭片管、錯列布置,結灰不容易清除,運行大半年后,使省煤器前后壓差由燃煤和混燃時的250~300 Pa增大到800~900 Pa,影響爐膛壓力和一二次總風量。
4、全燃生物質后鍋爐改進措施
4.1 調整1#、2#鍋爐二次風補給位置
為了達到在鍋爐爐膛中后部有效補氧助燃和盡可能地將生物質壓制在爐膛下部燃燒減少后燃,控制返料器不超溫的目的,對原二次風的補給位置重新進行了調整。在11 m標高處兩個新增生物質給料口上方1.5 m和2.5 m標高處的前墻和后墻各自增加兩個二次風口,并且后墻二次風口的位置比前墻的二次風口高1 m左右(見圖4),起到用二次風將人爐生物質盡可能向爐膛下方壓制,減緩生物質及其揮發分向上移動的速度,使生物質在爐膛內停留時間變長,并盡可能燃盡的作用;對于原來三排二次風最下兩排進行了封閉,第三排二次風根據運行參數變化可適當調整。二次風口改造后,使返料器溫度下降近30℃,降低排煙溫度6~7℃,提高了鍋爐帶負荷能力,有利于實現鍋爐長期穩定運行。

4.2調整優化1#、2#鍋爐燃燒
由于生物質燃料與煤的特性上的差異,鍋爐爐膛火焰中心的變化,使鍋爐運行在燃燒調整時對一次風與二次風的配比有了較大的不同,在燃煤情況下,一次風與二次風的配比為6:4,而燃燒生物質時理論上為4:6的關系,由于引風機風量的影響,在實際運行調整中要求一次風保證床料的流化即可,二次風盡可能保證燃盡。通過優化一次風與二次風的配比,生物質的后燃情況及燃盡情況大為好轉,燃燒后大渣、飛灰可燃物明顯下降。
4.3加長1#鍋爐引風機葉輪,提高引風機壓頭
由于電除塵器前增加旋風分離器,使阻力增加了800 Pa左右,造成原引風機的風壓不夠。引風機額定電流為38 A,全燃生物質后引風機電流為28 A,實際使用未達到額定值,可以通過增加引風機葉輪長度來提高壓頭。公司請風機廠重新設計了引風機葉輪,葉輪加長了5~6 cm,引風機壓頭增加600 Pa左右,運行電流為33 A,初步解決了引風風壓不夠制約一二次總風量的問題,減少爐膛正壓運行。
4.4加裝返料器吹灰裝置
由于生物質后燃,返料器返料灰量少,熱量不易帶走,返料器超溫使生物質灰變形,并且在返料器錐部慢慢結焦,減小并最終堵死返料灰的返回通道,造成返料器堵塞。為了解決返料頻繁堵灰造成停爐問題,在二次風補給位置和燃燒調整上進行攻關,降低返料器的溫度,防止返料器壁慢慢掛焦,同時在返料器錐部安裝了吹灰裝置,利用壓縮空氣每班定期吹掃,在返料器壁掛焦的初期將焦塊吹掉,從而大大減緩了返料器掛焦的速度,基本解決了返料器頻繁堵灰的問題(如圖5)。

4.5更換鍋爐分離器中心筒,提高返料器分離效率
生物質的灰分較少,而循環物料的多少對床層溫度和返料器的溫度影響非常大.故返料器分離效率成為鍋爐負荷能力的重要影響因素。為了提高返料器分離效率,將使用多年的鍋爐分離器中心筒更換,增加循環物料捕捉能力,提高爐膛差壓。
4.6增大鍋爐排渣管
生物質加工過程中,人為加入的石子、磚塊等雜質也對循環流化床料的流化和放渣造成很大的影響。如果排渣管規格由咖159改為+219,排渣難問題基本解決。
5、鍋爐改進后運行效果
通過2010年上半年攻關和鍋爐完善,1#、2#鍋爐全燃改造后帶負荷能力已從原40~45 t/h提高到現在50~55 t/h,每月的上網電量也由上半年1 150萬千瓦時/月,增加到下半年的1450萬千瓦時/月;鍋爐全燃改造后最長運行記錄由上半年的15天增加到下半年連續運行64天,鍋爐的穩定性和經濟性大大提高。
6、需要繼續攻關和關注的問題
(1)力爭將鍋爐負荷提高到60 t/h,主要措施如:加強收購生物質質量的管控;研究優化不同品種‘生物質燃料的配比;研究鍋爐輔機(引風機等)的重新選型和改造,提高風量調整的選擇幅度;進一步優化燃燒調整等,提高鍋爐的負荷率;料倉帶料運行,提高鍋爐負荷的穩定性。
(2)總結鍋爐全燃生物質過程中,受熱面結灰、腐蝕的規律和特點,完善減緩其結灰、腐蝕和防止堵灰方面的措施。
(3)高低溫過熱器、省煤器和空氣預熱器腐蝕后,將面臨材質改型和結構型式的調整,在調整過程中應重視過熱器、省煤器等換型時在防止腐蝕、堵灰與保證不減少受熱面積兩個方面的平衡。
7、結論
寶應協鑫公司通過2006年摻燒煤泥、2006年摻燒生物質、2007年新建秸稈直燃鍋爐和燃煤循環流化床鍋爐摻燒80%以上的生物質技改工程,將公司由煤泥綜合利用成功轉型為生物質綜合利用;再到2009年將1 #、2#循環流化床混燃鍋爐(摻燒80%以上生物質)改造為全燃生物質鍋爐,實現公司由混燃生物質發電企業轉型為全燃生物質發電企業等,改變了公司供熱量小、上網電量低的狀況,增加了企業效益,減少了虧損,實現了公司的可持續發展。全燃生物質改造的探索為我國燃煤小熱電走出困境,探尋了一條嶄新的道路;也為我國生物質發電技術的研究做出了貢獻。實踐證明,寶應協鑫公司75 t/h燃煤鍋爐全燃生物質改造是成功的。
三門峽富通新能源科技有限公司銷售生物質顆粒燃料、生物質鍋爐、家庭用炊事爐灶以及生產生物質顆粒燃料的顆粒機、秸稈壓塊機。