0、前言
黑龍江省雞西市立新煤礦六井煤質呈中級灰份,富含白色凝灰巖,遇水膨脹,黏度增加,無法水洗,由于煤質不好,長期困擾企業發展、結合立新礦實際情況,2003年12月份,具有占地面積小,投資少,工藝簡單等優點的復合干法選煤系統投入運行。系統中的主要設備一
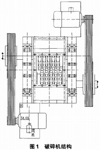
破碎機選用的是新齒形分級破碎機,型號為2PGC6550。


1、結構原理
該型破碎機采用新型破碎齒,破碎齒呈螺旋均布在齒輥上,如圖1所示。兩齒輥相對旋轉如旋轉的格篩,將小于產品粒度的物料進行篩分,將大于產品粒度的物料進行破碎,克服進入破碎機大小物料摻雜破碎的缺陷,該機兩齒輥中心距的調節采用獨特的偏心軸承杯結構,調節方法如圖2所示。

使用中發現,當2個齒輥中心距離調整到Amin =585 mm時,破碎后最大粒度高達80 mm,無法滿足主選機入料粒度(0~60 mm)要求。經過分析論證,將16 mm厚,45 mm寬的普通鋼板卷成環形襯套,然后沿徑向分成3瓣,將環形襯套焊接在齒輥的齒溝上,如圖3所示。從而縮小產品通過的空間距離,使粒度縮小,經試用破碎粒度得到調整,滿足了主選機的入料粒度要求,使用效果良好。運行1a后焊接的瓣式環形襯套被磨損,粒度增大,此時采用在襯套上堆焊耐磨焊條的方式進行修補仍可滿足使用要求,既方便又安全可靠。
2、結語
將瓣式環形襯套焊接在2PCC破碎機齒溝表面上,可以方便調整齒頂與齒溝之間的間隙,縮小產品通過的空間距離,得到細小的破碎粒度,同進,便于維修,省時省力。如將普通鋼板換成耐磨鋼板,效果會更好。
三門峽富通新能源銷售顆粒機、飼料顆粒機、破碎機等機械設備。